Úvodná stránka

DOLS B-042-U - nerezová poštová schránka na zamurovanie, s hovorovým modulom Urmet, menovkou a zvončekovým tlačidlom

DOLS B-042-U - nerezová poštovní schránka k zazdění, s hovorovým modulem Urmet, jmenovkou  a zvonkovým tlačítkem
DOLS B-042-U Nerezová poštová schránka na zamurovanie, s nastaviteľnou hĺbkou. Zadné dvierka možno orámovať...
Kód položkyDLS-B-042-U
Skladom 1 ks, na odoslanie zajtra
Pôvodná cena254,39 ušetríte 25,44
Cena bez DPH186,14
Cena s DPH228,95
Pridať do košíka (ks):
Záruka24mesiacov
ZnačkaDOLS
EAN8595050580661
Hmotnosť3kg
  • Popis
  • Parametre
  • Príslušenstvo
  • Alternatívy
  • Návody na stiahnutie
  • Video
  • Články
  • Otázka na produkt

Popis

DOLS B-042-U

Nerezová poštová schránka na zamurovanie, s nastaviteľnou hĺbkou. Zadné dvierka možno orámovať L profilom a tým začistiť stavebný otvor (k nájdeniu v Príslušenstve).

Obsah balenia:
  • 1x Telo poštovej schránky s dvierkami pre výber osadenými zámkom so zahnutou závorou
  • 1x Čelná doska osadená malou plastovou menovkou, zvonkovým tlačidlom a hovorovým modulom Urmet
  • 3x Kľúč
Technické informácie:
  • Montáž: zamurovanie do stĺpika (face bloku, KB bloku a iných tvárnic)
  • Vhod: vpredu
  • Výber: vzadu (dvierka možno otočiť - ľavé/pravé)
  • Menovka: malá, podsvietená
  • Hovorový modul: Urmet 1145/500 - 4 + n (k zapojeniu je nutný napájací zdroj Urmet, k nájdeniu v záložke Príslušenstvo)
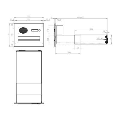
  • Rozmery:
    • vhod: 260 x 20 mm
    • čelná doska: 350 x 270 mm
    • horná elektrokrabica: 295 x 110 x 100 mm
    • telo schránky: 300 x 110 x 400 - 630 mm
    • zadné dvierka: 300 x 110 mm
  • Čelná doska, sklapka a zadné dvierka:
    • Materiál: nerezová oceľ
    • Povrchová úprava: mat / brus K240
  • Telo schránky:
    • Materiál: oceľový plech
    • Povrchová úprava: galvanicky pozinkované
    • Farba: exteriérová prášková vypaľovacia, RAL 7040
Parametre
Rozmer čelnej dosky 350 x 270 mm
Menovka áno
Vonkajšie použitie áno
Zvončekové tlačidlo áno
Výrobca DOLS
Komunikátor áno
Materiál oceľ
Materiál oceľ nerezová
Kamera nie
Povrchová úprava farbené
Povrchová úprava mat / brus K240
Povrchová úprava pozinkované
Farba schránky Nerez
Montáž zabudovanie
Vhod zásielok vpredu
Výber zásielok vzadu
Výška schránky 220 mm
Šírka schránky 300 mm
Hĺbka schránky 400 - 630 mm

Súvisiace položky

DOLS 139915040000 - nerezový rám z L profilov pre olemovanie zadných dvierok poštovej schránky 300x110 mm

DOLS 139915040000 - nerezový rám z L profilov pre olemovanie zadných dvierok poštovej schránky 300x110 mm

Materiál: ocel nerezová; Povrchová úprava: mat / brus K240; Venkovní použití: Ano; Výrobce: DOLS;

Kód položky:DLS-R-B-04-B-042-D-041-D-042

26,25

21,34 bez DPH

Skladom 3 ks, na odoslanie zajtra

DOLS 139915040001 - nerezový rám z jedného kusu pre olemovanie zadných dvierok poštovej schránky 300x110 mm

DOLS 139915040001 - nerezový rám z jedného kusu pre olemovanie zadných dvierok poštovej schránky 300x110 mm

Materiál: ocel nerezová; Povrchová úprava: mat / brus K240; Venkovní použití: Ano; Výrobce: DOLS;

Kód položky:139915040001

24,26

19,72 bez DPH

Skladom 8 ks, na odoslanie zajtra

DOLS 24000000000002 - samolepka NEVHAZOVAT REKLAMNÍ TISK, pre poštové schránky

DOLS 24000000000002 - samolepka NEVHAZOVAT REKLAMNÍ TISK, pre poštové schránky

Výrobce: DOLS;

Kód položky:DLS-NRT

0,75

0,61 bez DPH

Skladom 33 ks, na odoslanie zajtra

DOLS 24722061100010 - krídlový zámok so zahnutou závorou, pre poštové schránky

DOLS 24722061100010 - krídlový zámok so zahnutou závorou, pre poštové schránky

Výrobce: DOLS;

Kód položky:DLS-ZK

6,00

4,88 bez DPH

Skladom 16 ks, na odoslanie zajtra

Plastová menovka - malá

Plastová menovka - malá

Výrobce: DOLS;

Kód položky:DLS-JM

1,35

1,10 bez DPH

Skladom > 100 ks, na odoslanie zajtra

Urmet 1150 - domový telefón pre analógový zvončekový systém, biely

Urmet 1150 - domový telefón pre analógový zvončekový systém, biely

Délka: 52; Šířka: 90; Výrobce: Urmet; Výška: 200;

Kód položky:DLS-URM-1150

26,46

21,51 bez DPH

Skladom 2 ks, na odoslanie zajtra

Urmet 1150/1 - domový telefón pre analógový zvončekový systém, biely

Urmet 1150/1 - domový telefón pre analógový zvončekový systém, biely

Délka: 52; Šířka: 90; Výrobce: Urmet; Výška: 200;

Kód položky:DLS-URM-1150/1

29,98

24,37 bez DPH

Skladom 3 ks, na odoslanie zajtra

URMET 786/11 - napájací a riadiaci modul pre analógový zvončekový systém

URMET 786/11 - napájací a riadiaci modul pre analógový zvončekový systém

Výrobce: Urmet;

Kód položky:DLS-URM-786/11

79,21

64,40 bez DPH

Skladom 3 ks, na odoslanie zajtra

Zámok so zahnutou závorou

Zámok so zahnutou závorou

Výrobce: DOLS;

Kód položky:DLS-ZZ

4,75

3,86 bez DPH

Skladom 20 ks, na odoslanie zajtra

Podobné položky

DOLS B-042 ČD-1 - nerezová poštová schránka na zamurovanie, s menovkou

DOLS B-042 ČD-1 - nerezová poštová schránka na zamurovanie, s menovkou

Barva schránky: Nerez; Hloubka schránky: 400 - 630; Jmenovka: Ano; Kamera: Ne; Komunikátor: Ne; Materiál: ocel; ocel nerezová; Montáž: zabudování; Povrchová úprava: barveno; mat / brus K240; pozinkováno; Rozměr čelní desky: 350 x 160; Šířka schránky: 300; Venkovní použití: Ano; Vhoz zásilek: vpředu; Výběr zásilek: vzadu; Výrobce: DOLS; Výška schránky: 110; Zvonkové tlačítko: Ne;

Kód položky:DLS-B-042-CD-1

110,50

89,84 bez DPH

Skladom 9 ks, na odoslanie zajtra

DOLS B-042 ČD-2 - nerezová poštová schránka na zamurovanie, s menovkou a zvončekovým tlačidlom

DOLS B-042 ČD-2 - nerezová poštová schránka na zamurovanie, s menovkou a zvončekovým tlačidlom

Barva schránky: Nerez; Hloubka schránky: 400 - 630; Jmenovka: Ano; Kamera: Ne; Komunikátor: Ne; Materiál: ocel; ocel nerezová; Montáž: zabudování; Povrchová úprava: barveno; mat / brus K240; pozinkováno; Rozměr čelní desky: 350 x 160; Šířka schránky: 300; Venkovní použití: Ano; Vhoz zásilek: vpředu; Výběr zásilek: vzadu; Výrobce: DOLS; Výška schránky: 110; Zvonkové tlačítko: Ano;

Kód položky:DLS-B-042-CD-2

122,50

99,59 bez DPH

Skladom 5 ks, na odoslanie zajtra

DOLS B-042 ČD-3 - nerezová poštová schránka na zamurovanie, s 2x menovkou a 2x zvončekovým tlačidlom

DOLS B-042 ČD-3 - nerezová poštová schránka na zamurovanie, s 2x menovkou a 2x zvončekovým tlačidlom

Barva schránky: Nerez; Hloubka schránky: 400 - 630; Jmenovka: Ano; Kamera: Ne; Komunikátor: Ne; Materiál: ocel; ocel nerezová; Montáž: zabudování; Povrchová úprava: barveno; mat / brus K240; pozinkováno; Rozměr čelní desky: 350 x 160; Šířka schránky: 300; Venkovní použití: Ano; Vhoz zásilek: vpředu; Výběr zásilek: vzadu; Výrobce: DOLS; Výška schránky: 110; Zvonkové tlačítko: Ano;

Kód položky:DLS-B-042-CD-3

138,25

112,40 bez DPH

Skladom 4 ks, na odoslanie zajtra

DOLS B-042 ČD-4 - nerezová poštová schránka na zamurovanie, bez menovky

DOLS B-042 ČD-4 - nerezová poštová schránka na zamurovanie, bez menovky

Barva schránky: Nerez; Hloubka schránky: 400 - 630; Jmenovka: Ne; Kamera: Ne; Komunikátor: Ne; Materiál: ocel; ocel nerezová; Montáž: zabudování; Povrchová úprava: barveno; mat / brus K240; pozinkováno; Rozměr čelní desky: 350 x 160; Šířka schránky: 300; Venkovní použití: Ano; Vhoz zásilek: vpředu; Výběr zásilek: vzadu; Výrobce: DOLS; Výška schránky: 110; Zvonkové tlačítko: Ne;

Kód položky:DLS-B-042-CD-4

106,75

86,79 bez DPH

Skladom 9 ks, na odoslanie zajtra

DOLS B-042-ABB - nerezová poštová schránka na zamurovanie, s videohovorovým modulom ABB, menovkou a zvonkovým tlačidlom

DOLS B-042-ABB - nerezová poštová schránka na zamurovanie, s videohovorovým modulom ABB, menovkou a zvonkovým tlačidlom

Barva schránky: Nerez; Hloubka schránky: 400 - 630; Jmenovka: Ano; Kamera: Ano; Komunikátor: Ano; Materiál: ocel; ocel nerezová; Montáž: zabudování; Povrchová úprava: barveno; mat / brus K240; pozinkováno; Rozměr čelní desky: 350 x 270; Šířka schránky: 300; Venkovní použití: Ano; Vhoz zásilek: vpředu; Výběr zásilek: vzadu; Výrobce: DOLS; Výška schránky: 220; Zvonkové tlačítko: Ano;

Kód položky:DLS-B-042-ABB

739,17

600,95 bez DPH

Skladom 1 ks, na odoslanie zajtra
Predmet :
Text :
Meno :
Priezvisko :
E-mail :
Súhlasím so zpracováním osobných údajov.

Naše predajne
  • Predajňa a výdajné miesto eshopu
    Závodu míru 306/184
    360 17 Karlovy Vary - Stará Role
    Po - Pi | 8:00 - 16:00

    IČ: 03522865
    DIČ: CZ03522865
KovoPolotovary.cz na Firmy.cz
  • STUDIO H+H – záhradná a lesná technika
    Jáchymovská 27/114
    360 04 Karlovy Vary - Bohatice
    Po - PI | 8:00 - 16:00
© 2019 - 2026 KovoPolotovary.sk - všetky práva vyhradené

Pomôžte nám zlepšovať web - nastavenie cookies

Na čo najlepší zážitok z nakupovania potrebujeme Váš súhlas so spracovaním cookies, teda malých súborov, ktoré sa dočasne ukladajú vo Vašom prehliadači. Tieto súbory umožňujú funkčné vyhľadávanie, uloženie produktov v košíku, pamätajú si vaše prihlásenie a pomáhajú nám priblížiť Vaše záujmy, aby sme Vás neobťažovali nevhodnou reklamou.