Úvodná stránka

Fischer DuoXpand 10x120 FUS R (balenie 50 ks) – rámové hmoždinky s nerezovou skrutkou so šesťhrannou hlavou SW13 / TORX T40

Fischer DuoXpand 10x120 FUS R (balení 50 ks) – rámové hmoždinky s nerezovým šroubem s šestihrannou hlavou SW13 / TORX T40
Fischer DuoXpand 10x120 FUS R (562177), balenie 50 ks Rámové hmoždinky vhodné na prevlečnú montáž kovových prvkov...
Kód položkyKF-562177-bal50
Na objednávku, najskôr štvrtok 23.04.2026
Cena bez DPH228,04
Cena s DPH280,49
Pridať do košíka (bal):
Záruka24mesiacov
ZnačkaFischer
EAN4048962440386
Hmotnosť2,5kg
  • Popis
  • Parametre
  • Príslušenstvo
  • Alternatívy
  • Návody na stiahnutie
  • Video
  • Články
  • Otázka na produkt

Popis

Fischer DuoXpand 10x120 FUS R (562177), balenie 50 ks

Rámové hmoždinky vhodné na prevlečnú montáž kovových prvkov do plných, dierovaných aj dutinových materiálov. Tieto inteligentné hmoždinky sa deformujú podľa typu stavebného materiálu.

Výhody a funkcie:
  • Vďaka kombinácii dvoch materiálov sa hmoždinky lepšie prispôsobia typu stavebného materiálu.
  • Golier zabraňuje zapadnutiu hmoždinky do otvoru a predchádza kontaktnej korózii.
  • Poistné krídelká proti pretáčaniu.
  • Bezpečnostná skrutka so šesťhrannou hlavou aj s TORX drážkou vhodná na kotvenie kovových konštrukcií.
  • Spĺňa európske technické schválenie (ETA) pre viacnásobné kotvenie nenosných systémov.

Obsah balenia:
  • 50x Fischer DuoXpand 10x120 FUS R - rámová hmoždinka s nerezovou skrutkou so šesťhrannou hlavou

Vhodné pro:
  • Betón
  • Plné pálené tehly
  • Plné vápennopieskové tehly
  • Zvisle dierované pálené tehly
  • Dierované vápennopieskové tehly
  • Dutinové tvárnice z ľahčeného betónu
  • Plné tvárnice z ľahčeného betónu
  • Plynosilikát (typ pórobetónu)

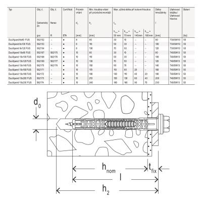
Technické informácie:
  • Dĺžka hmoždinky: 120 mm
  • Pre priemer otvoru: 10 mm
  • Min. hĺbka otvoru: 130 mm
  • Kotevná hĺbka: 50 až 70 mm
  • Úžitková plocha: 50 až 70 mm
  • Pre rozmer kľúča: SW13, 13 mm
  • Drážka: TORX, T40
  • Materiál:
    • polyamid
    • polyoxymetylén
    • nerezová oceľ
Parametre
Priemer vrtáka 10 mm
Min. hĺbka vývrtu 130 mm
Materiál oceľ nerezová
Materiál polyamid
Materiál polyoxymetylén
Dĺžka 120 mm
Výrobca Fischer

Súvisiace položky

Wera 066491 – skrutkovací bit TORX®, typ 867/1, TX 40 x 25 mm

Wera 066491 – skrutkovací bit TORX®, typ 867/1, TX 40 x 25 mm

Typ profilu: TORX®; Výrobce: Wera;

Kód položky:WE-B-8671-TX_40-25

od 1,56

od 1,27 bez DPH

Skladom 9 ks, na odoslanie utorok

Podobné položky

Fischer DuoXpand 10x100 FUS R (balenie 50 ks) – rámové hmoždinky s nerezovou skrutkou so šesťhrannou hlavou SW13 / TORX T40

Fischer DuoXpand 10x100 FUS R (balenie 50 ks) – rámové hmoždinky s nerezovou skrutkou so šesťhrannou hlavou SW13 / TORX T40

Délka: 100; Materiál: ocel nerezová; polyamid; polyoxymethylen; Min. hloubka vývrtu: 110; Průměr vrtáku: 10; Výrobce: Fischer;

Kód položky:KF-562176-bal50

246,46

200,37 bez DPH

Na objednávku, najskôr štvrtok 23.04.2026

Fischer DuoXpand 10x120 FUS (balenie 50 ks) – rámové hmoždinky s pozinkovanou skrutkou so šesťhrannou hlavou SW13 / TORX T40

Fischer DuoXpand 10x120 FUS (balenie 50 ks) – rámové hmoždinky s pozinkovanou skrutkou so šesťhrannou hlavou SW13 / TORX T40

Délka: 120; Materiál: ocel; polyamid; polyoxymethylen; Min. hloubka vývrtu: 130; Průměr vrtáku: 10; Výrobce: Fischer;

Kód položky:KF-562169-bal50

86,28

70,15 bez DPH

Skladom 1 bal, na odoslanie utorok

Fischer DuoXpand 10x120 FUS R – rámová hmoždinka s nerezovou skrutkou so šesťhrannou hlavou SW13 / TORX T40

Fischer DuoXpand 10x120 FUS R – rámová hmoždinka s nerezovou skrutkou so šesťhrannou hlavou SW13 / TORX T40

Délka: 120; Materiál: ocel nerezová; polyamid; polyoxymethylen; Min. hloubka vývrtu: 130; Průměr vrtáku: 10; Výrobce: Fischer;

Kód položky:KF-562177

6,73

5,47 bez DPH

Na objednávku, najskôr štvrtok 23.04.2026

Fischer DuoXpand 10x120 T (balenie 50 ks) – rámové hmoždinky s pozinkovanou skrutkou so zápustnou hlavou TORX T40

Fischer DuoXpand 10x120 T (balenie 50 ks) – rámové hmoždinky s pozinkovanou skrutkou so zápustnou hlavou TORX T40

Délka: 120; Materiál: ocel; polyamid; polyoxymethylen; Min. hloubka vývrtu: 130; Průměr vrtáku: 10; Výrobce: Fischer;

Kód položky:KF-562157-bal50

60,97

49,57 bez DPH

Skladom 1 bal, na odoslanie utorok

Fischer DuoXpand 10x120 T R (balenie 50 ks) – rámové hmoždinky s nerezovou skrutkou so zápustnou hlavou TORX T40

Fischer DuoXpand 10x120 T R (balenie 50 ks) – rámové hmoždinky s nerezovou skrutkou so zápustnou hlavou TORX T40

Délka: 120; Materiál: ocel nerezová; polyamid; polyoxymethylen; Min. hloubka vývrtu: 130; Průměr vrtáku: 10; Výrobce: Fischer;

Kód položky:KF-562165-bal50

254,95

207,28 bez DPH

Na objednávku, najskôr štvrtok 23.04.2026

Fischer DuoXpand 10x140 FUS R (balenie 50 ks) – rámové hmoždinky s nerezovou skrutkou so šesťhrannou hlavou SW13 / TORX T40

Fischer DuoXpand 10x140 FUS R (balenie 50 ks) – rámové hmoždinky s nerezovou skrutkou so šesťhrannou hlavou SW13 / TORX T40

Délka: 140; Materiál: ocel nerezová; polyamid; polyoxymethylen; Min. hloubka vývrtu: 150; Průměr vrtáku: 10; Výrobce: Fischer;

Kód položky:KF-562178-bal50

331,30

269,35 bez DPH

Na objednávku, najskôr štvrtok 23.04.2026

Fischer DuoXpand 10x80 FUS R (balenie 50 ks) – rámové hmoždinky s nerezovou skrutkou so šesťhrannou hlavou SW13 / TORX T40

Fischer DuoXpand 10x80 FUS R (balenie 50 ks) – rámové hmoždinky s nerezovou skrutkou so šesťhrannou hlavou SW13 / TORX T40

Délka: 80; Materiál: ocel nerezová; polyamid; polyoxymethylen; Min. hloubka vývrtu: 90; Průměr vrtáku: 10; Výrobce: Fischer;

Kód položky:KF-562175-bal50

216,74

176,21 bez DPH

Na objednávku, najskôr štvrtok 23.04.2026
Predmet :
Text :
Meno :
Priezvisko :
E-mail :
Súhlasím so zpracováním osobných údajov.

Naše predajne
  • Predajňa a výdajné miesto eshopu
    Závodu míru 306/184
    360 17 Karlovy Vary - Stará Role
    Po - Št
    | 8:00 - 16:00
    Pi
    | 8:00 - 15:00
    IČ: 03522865
    DIČ: CZ03522865
KovoPolotovary.cz na Firmy.cz
  • STUDIO H+H – záhradná a lesná technika
    Jáchymovská 27/114
    360 04 Karlovy Vary - Bohatice
    Po - Pi
    | 8:00 - 16:00
    So
    | 8:00 - 12:00
© 2019 - 2026 KovoPolotovary.sk - všetky práva vyhradené

Pomôžte nám zlepšovať web - nastavenie cookies

Na čo najlepší zážitok z nakupovania potrebujeme Váš súhlas so spracovaním cookies, teda malých súborov, ktoré sa dočasne ukladajú vo Vašom prehliadači. Tieto súbory umožňujú funkčné vyhľadávanie, uloženie produktov v košíku, pamätajú si vaše prihlásenie a pomáhajú nám priblížiť Vaše záujmy, aby sme Vás neobťažovali nevhodnou reklamou.