Úvodná stránka

Fischer DuoXpand 10x160 FUS (balenie 50 ks) – rámové hmoždinky s pozinkovanou skrutkou so šesťhrannou hlavou SW13 / TORX T40

Fischer DuoXpand 10x160 FUS (balení 50 ks) – rámové hmoždinky s pozinkovaným šroubem s šestihrannou hlavou SW13 / TORX T40
Fischer DuoXpand 10x160 FUS (562171), balenie 50 ks Rámové hmoždinky vhodné na prevlečnú montáž kovových prvkov...
Kód položkyKF-562171-bal50
Skladom 1 bal, na odoslanie utorok
Cena bez DPH96,05
Cena s DPH118,14
Pridať do košíka (bal):
Záruka24mesiacov
ZnačkaFischer
EAN4048962440324
Hmotnosť3,12kg
  • Popis
  • Parametre
  • Príslušenstvo
  • Alternatívy
  • Návody na stiahnutie
  • Video
  • Články
  • Otázka na produkt

Popis

Fischer DuoXpand 10x160 FUS (562171), balenie 50 ks

Rámové hmoždinky vhodné na prevlečnú montáž kovových prvkov do plných, dierovaných aj dutinových materiálov. Tieto inteligentné hmoždinky sa deformujú podľa typu stavebného materiálu.

Výhody a funkcie:
  • Vďaka kombinácii dvoch materiálov sa hmoždinky lepšie prispôsobia typu stavebného materiálu.
  • Golier zabraňuje zapadnutiu hmoždinky do otvoru a predchádza kontaktnej korózii.
  • Poistné krídelká proti pretáčaniu.
  • Bezpečnostná skrutka so šesťhrannou hlavou aj s TORX drážkou vhodná na kotvenie kovových konštrukcií.
  • Spĺňa európske technické schválenie (ETA) pre viacnásobné kotvenie nenosných systémov.

Obsah balenia:
  • 50x Fischer DuoXpand 10x160 FUS - rámová hmoždinka s pozinkovanou skrutkou so šesťhrannou hlavou

Vhodné pro:
  • Betón
  • Plné pálené tehly
  • Plné vápennopieskové tehly
  • Zvisle dierované pálené tehly
  • Dierované vápennopieskové tehly
  • Dutinové tvárnice z ľahčeného betónu
  • Plné tvárnice z ľahčeného betónu
  • Plynosilikát (typ pórobetónu)

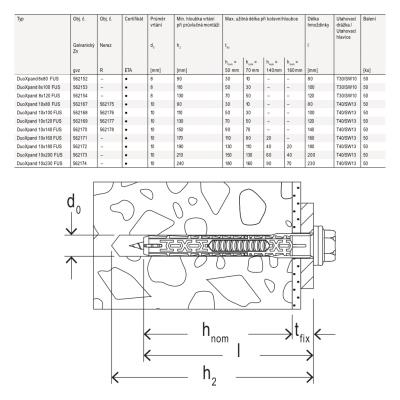
Technické informácie:
  • Dĺžka hmoždinky: 160 mm
  • Pre priemer otvoru: 10 mm
  • Min. hĺbka otvoru: 170 mm
  • Kotevná hĺbka: 50 až 140 mm
  • Úžitková plocha: 20 až 110 mm
  • Pre rozmer kľúča: SW13, 13 mm
  • Drážka: TORX, T40
  • Materiál:
    • polyamid
    • polyoxymetylén
    • pozinkovaná oceľ
Parametre
Priemer vrtáka 10 mm
Min. hĺbka vývrtu 170 mm
Materiál oceľ
Materiál polyamid
Materiál polyoxymetylén
Dĺžka 160 mm
Výrobca Fischer

Súvisiace položky

Wera 066491 – skrutkovací bit TORX®, typ 867/1, TX 40 x 25 mm

Wera 066491 – skrutkovací bit TORX®, typ 867/1, TX 40 x 25 mm

Typ profilu: TORX®; Výrobce: Wera;

Kód položky:WE-B-8671-TX_40-25

od 1,56

od 1,27 bez DPH

Skladom 9 ks, na odoslanie utorok

Podobné položky

Fischer DuoXpand 10x100 FUS (balenie 50 ks) – rámové hmoždinky s pozinkovanou skrutkou so šesťhrannou hlavou SW13 / TORX T40

Fischer DuoXpand 10x100 FUS (balenie 50 ks) – rámové hmoždinky s pozinkovanou skrutkou so šesťhrannou hlavou SW13 / TORX T40

Délka: 100; Materiál: ocel; polyamid; polyoxymethylen; Min. hloubka vývrtu: 110; Průměr vrtáku: 10; Výrobce: Fischer;

Kód položky:KF-562168-bal50

70,22

57,09 bez DPH

Skladom 1 bal, na odoslanie utorok

Fischer DuoXpand 10x120 FUS (balenie 50 ks) – rámové hmoždinky s pozinkovanou skrutkou so šesťhrannou hlavou SW13 / TORX T40

Fischer DuoXpand 10x120 FUS (balenie 50 ks) – rámové hmoždinky s pozinkovanou skrutkou so šesťhrannou hlavou SW13 / TORX T40

Délka: 120; Materiál: ocel; polyamid; polyoxymethylen; Min. hloubka vývrtu: 130; Průměr vrtáku: 10; Výrobce: Fischer;

Kód položky:KF-562169-bal50

86,28

70,15 bez DPH

Skladom 1 bal, na odoslanie utorok

Fischer DuoXpand 10x140 FUS (balenie 50 ks) – rámové hmoždinky s pozinkovanou skrutkou so šesťhrannou hlavou SW13 / TORX T40

Fischer DuoXpand 10x140 FUS (balenie 50 ks) – rámové hmoždinky s pozinkovanou skrutkou so šesťhrannou hlavou SW13 / TORX T40

Délka: 140; Materiál: ocel; polyamid; polyoxymethylen; Min. hloubka vývrtu: 150; Průměr vrtáku: 10; Výrobce: Fischer;

Kód položky:KF-562170-bal50

104,18

84,70 bez DPH

Skladom 1 bal, na odoslanie utorok

Fischer DuoXpand 10x160 FUS – rámová hmoždinka s pozinkovanou skrutkou so šesťhrannou hlavou SW13 / TORX T40

Fischer DuoXpand 10x160 FUS – rámová hmoždinka s pozinkovanou skrutkou so šesťhrannou hlavou SW13 / TORX T40

Délka: 160; Materiál: ocel; polyamid; polyoxymethylen; Min. hloubka vývrtu: 170; Průměr vrtáku: 10; Výrobce: Fischer;

Kód položky:KF-562171

2,83

2,30 bez DPH

Skladom

Fischer DuoXpand 10x160 T (balenie 50 ks) – rámové hmoždinky s pozinkovanou skrutkou so zápustnou hlavou TORX T40

Fischer DuoXpand 10x160 T (balenie 50 ks) – rámové hmoždinky s pozinkovanou skrutkou so zápustnou hlavou TORX T40

Délka: 160; Materiál: ocel; polyamid; polyoxymethylen; Min. hloubka vývrtu: 170; Průměr vrtáku: 10; Výrobce: Fischer;

Kód položky:KF-562159-bal50

98,55

80,12 bez DPH

Skladom 1 bal, na odoslanie utorok

Fischer DuoXpand 10x180 FUS (balenie 50 ks) – rámové hmoždinky s pozinkovanou skrutkou so šesťhrannou hlavou SW13 / TORX T40

Fischer DuoXpand 10x180 FUS (balenie 50 ks) – rámové hmoždinky s pozinkovanou skrutkou so šesťhrannou hlavou SW13 / TORX T40

Délka: 180; Materiál: ocel; polyamid; polyoxymethylen; Min. hloubka vývrtu: 190; Průměr vrtáku: 10; Výrobce: Fischer;

Kód položky:KF-562172-bal50

137,85

112,07 bez DPH

Skladom 1 bal, na odoslanie utorok

Fischer DuoXpand 10x200 FUS (balenie 50 ks) – rámové hmoždinky s pozinkovanou skrutkou so šesťhrannou hlavou SW13 / TORX T40

Fischer DuoXpand 10x200 FUS (balenie 50 ks) – rámové hmoždinky s pozinkovanou skrutkou so šesťhrannou hlavou SW13 / TORX T40

Délka: 200; Materiál: ocel; polyamid; polyoxymethylen; Min. hloubka vývrtu: 210; Průměr vrtáku: 10; Výrobce: Fischer;

Kód položky:KF-562173-bal50

194,94

158,49 bez DPH

Na objednávku, najskôr štvrtok 23.04.2026

Fischer DuoXpand 10x230 FUS (balenie 50 ks) – rámové hmoždinky s pozinkovanou skrutkou so šesťhrannou hlavou SW13 / TORX T40

Fischer DuoXpand 10x230 FUS (balenie 50 ks) – rámové hmoždinky s pozinkovanou skrutkou so šesťhrannou hlavou SW13 / TORX T40

Délka: 230; Materiál: ocel; polyamid; polyoxymethylen; Min. hloubka vývrtu: 240; Průměr vrtáku: 10; Výrobce: Fischer;

Kód položky:KF-562174-bal50

278,98

226,81 bez DPH

Na objednávku, najskôr štvrtok 23.04.2026

Fischer DuoXpand 10x80 FUS (balenie 50 ks) – rámové hmoždinky s pozinkovanou skrutkou so šesťhrannou hlavou SW13 / TORX T40

Fischer DuoXpand 10x80 FUS (balenie 50 ks) – rámové hmoždinky s pozinkovanou skrutkou so šesťhrannou hlavou SW13 / TORX T40

Délka: 80; Materiál: ocel; polyamid; polyoxymethylen; Min. hloubka vývrtu: 90; Průměr vrtáku: 10; Výrobce: Fischer;

Kód položky:KF-562167-bal50

59,06

48,02 bez DPH

Skladom 1 bal, na odoslanie utorok
Predmet :
Text :
Meno :
Priezvisko :
E-mail :
Súhlasím so zpracováním osobných údajov.

Naše predajne
  • Predajňa a výdajné miesto eshopu
    Závodu míru 306/184
    360 17 Karlovy Vary - Stará Role
    Po - Št
    | 8:00 - 16:00
    Pi
    | 8:00 - 15:00
    IČ: 03522865
    DIČ: CZ03522865
KovoPolotovary.cz na Firmy.cz
  • STUDIO H+H – záhradná a lesná technika
    Jáchymovská 27/114
    360 04 Karlovy Vary - Bohatice
    Po - Pi
    | 8:00 - 16:00
    So
    | 8:00 - 12:00
© 2019 - 2026 KovoPolotovary.sk - všetky práva vyhradené

Pomôžte nám zlepšovať web - nastavenie cookies

Na čo najlepší zážitok z nakupovania potrebujeme Váš súhlas so spracovaním cookies, teda malých súborov, ktoré sa dočasne ukladajú vo Vašom prehliadači. Tieto súbory umožňujú funkčné vyhľadávanie, uloženie produktov v košíku, pamätajú si vaše prihlásenie a pomáhajú nám priblížiť Vaše záujmy, aby sme Vás neobťažovali nevhodnou reklamou.